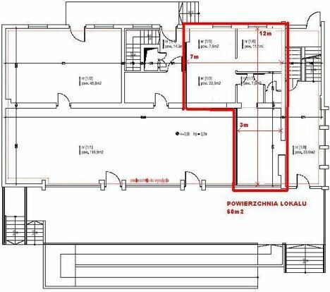
lokal 60m2 na parterze przy skrzyżowaniu Chorzowska Tuwima
Bytom / Rozbark Pokaż na mapie ›
Odświeżone: Sobota, 14 Marzec, 2026 10:18
2 900 zł
Szczegóły ogłoszenia
- Kategoria: Biura i lokale / Do wynajęcia
- Przeznaczenie:Handel i Usługi
- Powierzchnia:60 m2
- Sprzedaż:Bez pośredników
- Cena: 2 900 zł
Opis oferty
Lokal handlowo usługowy 60m2 na parterze w budynku przy skrzyżowaniu Chorzowska Tuwima obok Zabka, Kebab,Gotowy na sklep, usługi, biuro itp.
W budynku brak wspólnoty
Kazimierz Kula 606 - pokaż numer telefonu -
Sprawdź zainteresowanie tym ogłoszeniem
Wyświetlenia
Data dodania
Ostatnio widziany
Obserwujących
Wysłane zapytania
Odsłony telefonu
Powiadom o podobnych ogłoszeniach
Lokalizacja: Bytom
Kategoria: Nieruchomości » Biura i lokale » Do wynajęcia
Cena: od 2500 zł do 3500 zł Powierzchnia : od 51 m2 do 69 m2
Chcę otrzymywać powiadomienia o nowych ofertach
Łukasz
Konto firmowe
Na Lento.pl od 18 wrz 2012
Odpowiada szybko
Strona użytkownika
- Wypromuj ogłoszenie
- Zgłoś naruszenie
- Drukuj ulotkę
- Edytuj/usuń ogłoszenie
- Udostępnij ogłoszenie
- Dodaj na Facebook















