Mieszkanie Bytom, Józefa Piłsudskiego
Bytom Pokaż na mapie ›
Dodane: Piątek, 26 Wrzesień, 2025 13:42
330 000 zł
3000 zł/m2
Szczegóły ogłoszenia
- Kategoria: Mieszkania / Sprzedaż
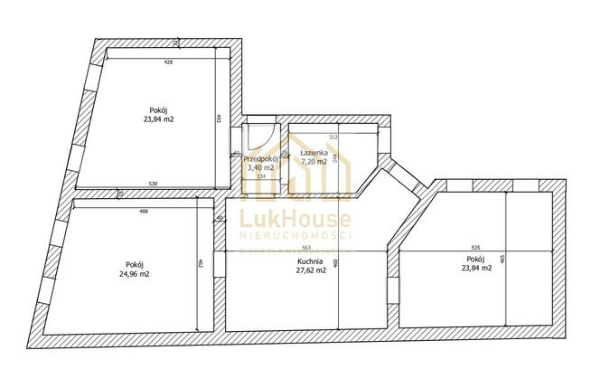
- Powierzchnia:110 m2
- Liczba pokoi:3 pokoje
- Zabudowa:Kamienica
- Piętro :3 piętro
- Liczba pięter:3 piętra
- Rynek:Wtórny
- Sprzedaż:Pośrednik
- Cena: 330 000 zł / 3000 zł/m2
Opis oferty
Wyłącznie u Nas!!Na sprzedaż proponujemy przestronne mieszkanie o powierzchni 110,86 m2, usytuowane na 3 piętrze eleganckiej kamienicy w centrum Bytomia.
To oferta dla osób, które pragną połączyć urok historycznej architektury z nowoczesnym komfortem i możliwością własnej aranżacji wnętrz.
Kamienica przeszła gruntowną renowację odnowiono klatkę schodową, stropy wymieniono na betonowe, a piwnice i fundamenty zostały odświeżone. Dach zyskał nową izolację oraz pokrycie.
W budynku całkowicie wymieniono instalacje: wodno-kanalizacyjną, gazową i elektryczną, a mieszkania wyposażono w nowe okna i drzwi.
Ściany zostały przygotowane pod wykończenie według własnego projektu. Przygotowano pełną instalację pod ogrzewanie gazowe podłogowe jedynym brakującym elementem jest piecyk dwufunkcyjny.
Mieszkanie oferowane jest w stanie deweloperskim, co daje pełną swobodę w aranżacji przestrzeni.
Lokal mieszkalny składa się z:
- 3 pokoi
- Kuchni
- Przedpokoju
- Łazienki wraz z WC
Informacje:
- Cena 330 tys zł
- Powierzchnia 110,86 m2
- Przygotowana instalacja pod dwufunkcyjny piecyk gazowy
- Wymienione instalacje elektryczne
- Wymienione instalacje wod-kan
- Okna nowe PCV
- Drzwi wejściowe nowe
- Balkon: Nie
- Parking dla mieszkańców przy drodze
Lokalizacja:
Atutem nieruchomości jest jej doskonała lokalizacja. W pobliżu znajdują się sklepy, punkty usługowe, restauracje i instytucje, a komunikacja miejska zapewnia szybki dostęp do całego miasta. Sama ulica zyskuje nowy, elegancki charakter dzięki odnowionym kamienicom i zadbanym przestrzeniom wokół budynków, tworząc przyjazne miejsce do życia.
To idealna przestrzeń dla osób ceniących komfort, nowoczesne rozwiązania i możliwość własnej aranżacji wnętrz.
Zapraszamy na prezentację!
Karolina Wieczorek
Tel: 602 - pokaż numer telefonu -
e-mail: @
www.luk-house.pl
LukHouse-Nieruchomości
"BiuroDlaWymagających"
DODATKOWE INFORMACJE:
Typ własności: własność
Rodzaj okien: PCV
Liczba pokoi: 3
Piętro: 3
Liczba pięter: 3
Ogrzewanie: gazowe
Typ balkonu: brak
Typ łazienki: z wc
Typ budynku: kamienica
Głośność: ciche
Klatka schodowa: po remoncie
Typ parkingu: przy ulicy
Stan lokalu: do wykończenia
Domofon: tak
Ostatnie piętro: tak
Gaz w budynku: tak
Treść niniejszego ogłoszenia nie stanowi oferty handlowej w rozumieniu Kodeksu Cywilnego.
Oferta wysłana z programu IMO dla biur nieruchomości
Numer oferty: 1445
Sprawdź zainteresowanie tym ogłoszeniem
Wyświetlenia
Data dodania
Ostatnio widziany
Obserwujących
Wysłane zapytania
Odsłony telefonu
Powiadom o podobnych ogłoszeniach
Lokalizacja: Bytom
Kategoria: Nieruchomości » Mieszkania » Sprzedaż
Cena: od 280500 zł do 379500 zł Powierzchnia : od 94 m2 do 127 m2
Chcę otrzymywać powiadomienia o nowych ofertach
- Wypromuj ogłoszenie
- Zgłoś naruszenie
- Drukuj ulotkę
- Edytuj/usuń ogłoszenie
- Udostępnij ogłoszenie
- Dodaj na Facebook






















